3D スキャンは素晴らしい。しかし、ナビゲーションは当て推量であってはならない。
美しい 3D 環境をキャプチャしました—しかし俯瞰レイアウトなしでは、自分の位置を把握したり、スペースを計画したり、クライアントとシンプルな概要を共有したりするのが難しい。以下でその問題を解決します。
スキャン内で迷子
イマーシブな 3D は強力ですが、俯瞰の参照がなければ複雑または広い環境で方向感覚を失いやすい。
共有できるレイアウトがない
クライアントや関係者はクリーンな平面図を求めています—3D ビューワーのナビゲーション方法の説明ではなく。
手動作図は遅い
製図者を雇ったり手でレイアウトをトレースしたりするには数日かかる。スキャンにはすべてのデータが既に存在します—抽出するだけでいい。
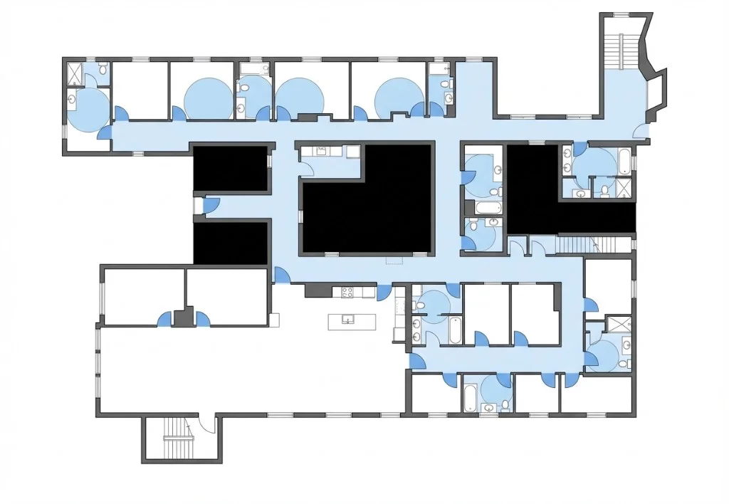
ワンクリック AI 平面図生成
平面図ツールをクリックして目の当たりにしてください。AI が 3D スキャンから数百万の Gaussian データポイントを分析し、壁・出入口・構造的境界を識別し、クリーンな俯瞰 2D レイアウトを瞬時にレンダリング。
手動作図なし。外部ソフトウェアなし。建築フットプリントはすでにスキャンの中に存在します—Splat Labs がそれを抽出するだけです。
AI プロンプトでクリーンアップ
実際の空間には雑然としたものがあります。組み込みの AI エディターを使用して、テキストプロンプトで家具・在庫・歩行者の残像をデジタルで取り除き—清潔な建築シェルを露わにします。
- 家具・棚・仮設備品を除去
- 混雑した環境の残像をクリーンアップ
- 異なるビジュアルテーマでスタイライズ
- ダウンロード前に特定の領域を洗練
あらゆるワークフローに合うスタイル
納品物に合ったアウトプットを選択。許可図のためのクリーンな建築シェルが必要でも、土木工学のための色分けされた雨水マップが必要でも、AI は同じスキャンから生成します。

建築レイアウト
壁・ドア・窓のみ—家具なし。建築家、許可申請、竣工ドキュメントのスタンダード。

家具付き平面図
すべての家具をクリーンな 2D アイコンで保持。不動産リスト、MLS 写真、物件マーケティングに最適。

スペースプランニング
機能別に色分けされた部屋—キッチン、バス、オフィスなど。インテリアデザイナー、テナントフィットアウト、オフィスプランナー向け。

防火安全 / 避難経路
出口を緑でハイライト、階段を赤で、廊下をマーク。建物コード準拠、消防署レビュー、緊急計画に対応。

計測対応
白地に超クリーンな黒い壁—寸法アノテーション向けに設計。鑑定士、評価者、数量積算する建設業者に好まれる。

MEP / ユーティリティレイアウト
シンク・トイレ・HVAC・電器など固定設備は保持、可動家具は除去。MEP エンジニアとリノベーション計画に最適。

インテリアデザインプレゼンテーション
温かみのある質感の床にスタイライズされた家具でライフスタイル感を演出。リノベーション提案、ホームステージング、クライアントプレゼンに最適。

竣工 CAD
黒背景に白/シアンのラインによる技術的 CAD 図面。建設ドキュメントとファシリティマネジメントのスタンダード。

アクセシビリティ / ADA レビュー
出入口幅・動線・クリアランスを青でハイライト。ADA コンプライアンス監査とアクセシビリティ評価に対応。
15 種類のスタイルはすべて AI 有効化で含まれています—スタイルごとの追加料金なし。
平面図を 3D 世界と接続
AI で生成したものでも自分でアップロードしたものでも、平面図は 3D 空間のどこに位置するかを把握する必要があります。3 点キャリブレーションシステムがそれを数秒で処理。
PNG としてダウンロード
AI 生成の平面図を高解像度 PNG でエクスポート。Photoshop、Illustrator、または任意のツールで編集—その後戻してください。
独自の平面図をアップロード
既に建築図面をお持ちですか?既存の平面図を PNG または JPEG 形式でアップロードし、プロジェクトに統合できます。
キャリブレーションの仕組み
平面図エディターでキャリブレーションツールを開く
3D スキャン内の認識可能なスポットに移動して選択
2D 平面図上の同じ位置をクリック。3 点以上繰り返す。
キャリブレートをクリック—スケール、回転、位置が自動的に同期
平面図がライブミニマップになる
すべてが一体となる場所です。生成・洗練・キャリブレーションされた平面図は単なる画像ではありません—3D ビューワー内のライブナビゲーションレイヤーになります。Gaussian Splat を歩き回ると、ミニマップ上のリアルタイムインジケーターがあなたの正確な位置と向いている方向を示します。
リアルタイム位置追跡
3D 空間をナビゲートしながら 2D 平面図上の正確な位置を確認。二度と方向感覚を失いません。
クリックしてナビゲート
ミニマップ上の任意の点をクリックして 3D ビューワーのその位置に直接ジャンプ。空間をより速く直感的に探索。
空間方位
物理的な空間に合わせてマップを向けることでシームレスなナビゲーション、正確なスペース計画、プロ品質のファシリティウォークスルーを実現。
実際の動作:デンバー REI フラッグシップ
90,000 平方フィートのアクティブな小売店のキャプチャ、AI 平面図の生成、ライブミニマップを使った結果のナビゲーションという完全なワークフローをご覧ください。
YouTube でフィールドテストを全編見るよくある質問
01AI 生成の平面図はどれくらい正確ですか?
Splat Labs はナビゲーションと方位付けに最適化された高忠実度ビジュアルマップを提供します。実寸測定と CAD エクスポート(.DXF/.DWG)を導入する大型アップデートを開発中です—ビジュアル参照から精密建築計画へとツールを進化させます。
02ダウンロードとアップロードでサポートされているファイル形式は何ですか?
AI 生成の平面図は PNG ファイルとしてダウンロードされます。独自の平面図をアップロードまたは編集済みのものを再アップロードする場合、Splat Labs は PNG と JPEG 形式の両方をサポートしています。
03AI は平面図から人物やクラッターを除去できますか?
はい。AI 編集ツールを使用すると、テキストプロンプトで在庫・棚・仮設備品、さらには歩行者の残像などの非構造的なクラッターを取り除くことができます。これにより物件のクリーンな建築シェルが現れます。
04最良の結果を得るためにどのようなハードウェアが必要ですか?
Splat Labs はハードウェア非依存ですが、Portal Cam に最適化されています。LiDAR データとマルチカメラアレイを組み合わせることで、複雑なテクスチャと細かい構造的詳細を解決するために必要なジオメトリ密度をキャプチャします。
05データ処理にはどれくらい時間がかかりますか?
重い処理はすべて Splat Labs クラウドで処理されます—高性能ワークステーションは不要です。一般的なベンチマークとして、30 分のウォークスルーは約 12 時間で処理され、高解像度の 3D 環境と平面図を提供します。
06ダウンロードした PNG にはスケールメタデータが含まれますか?
自動的にはありません。スケールと方位は、2D 平面図を正確なアライメントで 3D スキャンにリンクするプラットフォームの 3 点キャリブレーション機能を通じて適用されます。
07大規模または複数階のプロジェクトはどのように処理しますか?
Portal ベースのワークフローを使用して個別のスキャンをリンクします。大型プロジェクトは管理可能なセクション—個別のフロア、内外部セット—に分割され、パフォーマンスを低下させることなくシームレスなナビゲーションのために結合されます。